Používame cookies

Súbory cookie a ďalšie technológie sledovania používame na zlepšenie vášho zážitku z prehliadania našich webových stránok, na to, aby sme vám zobrazovali prispôsobený obsah a cielené reklamy, na analýzu návštevnosti našich webových stránok a na pochopenie toho, odkiaľ naši návštevníci prichádzajú. Viac info

Rodinný dom v pôvodnom stave, Soblahov, pozemok 1558 m2

Popis nehnuteľnosti

Zdieľať na Facebooku

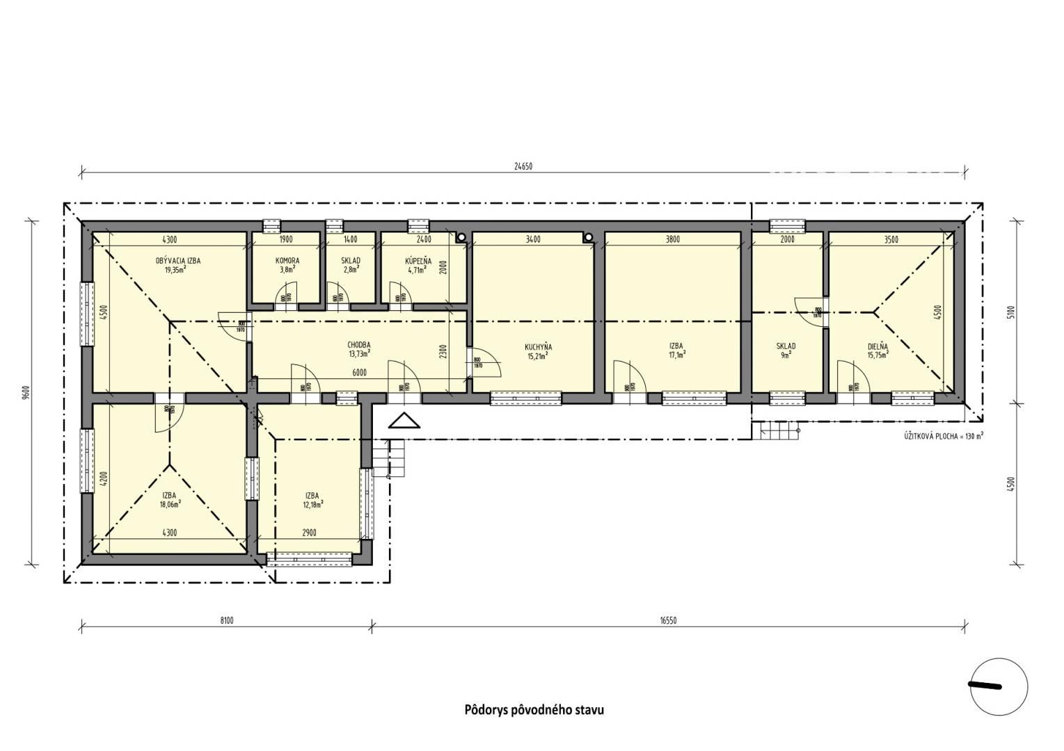
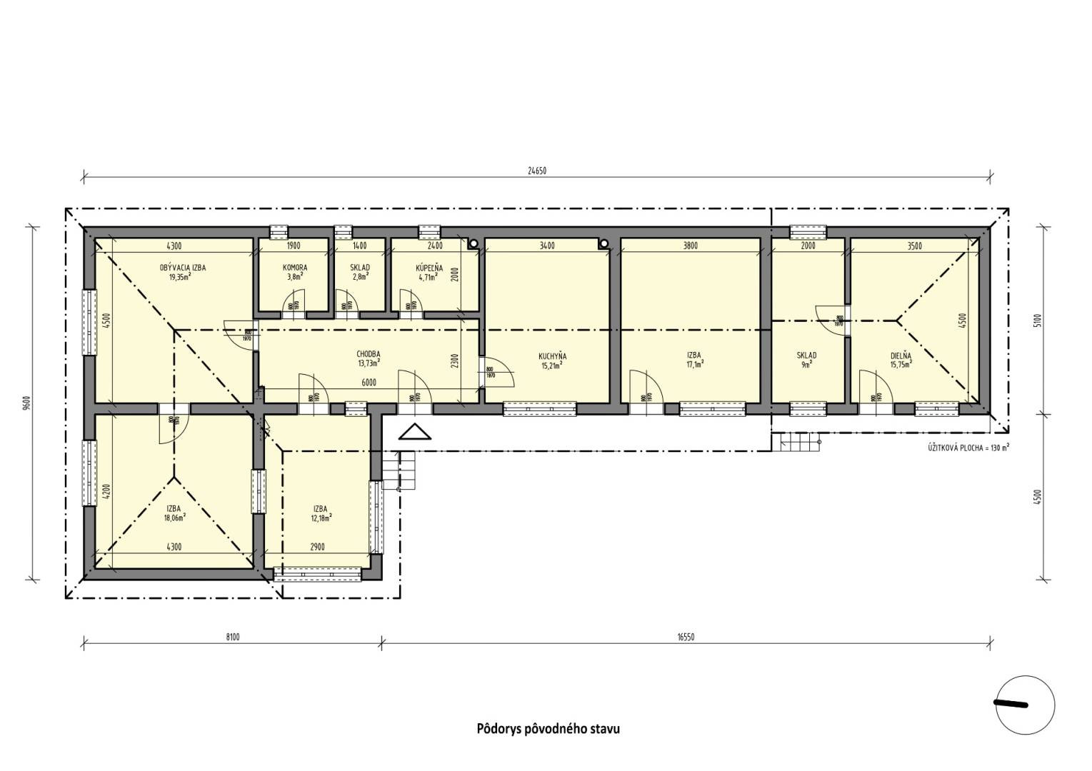
VAŠE REALITY - realitná kancelária Vám ponúka na predaj starší rodinný dom v dobrom stave nachádzajúci sa v obci Soblahov (okres Trenčín), s prístupom z miestnej cestnej komunikácie, s krásnym rovinatým pozemkom o výmere 549 m² a záhradou o výmere 1009 m². Rodinný dom je samostatne stojaci a je súčasťou obecnej zástavby rodinnými domami. Zastavaná plocha domu je 160 m², úžitková plocha domu je 130 m². Stavba je murovaná a zachovaná, no vyžaduje si rekonštrukciu, čo dáva budúcemu majiteľovi príležitosť prispôsobiť si dom podľa vlastných predstáv.

Strešná krytina bola pred pár rokmi vymenená za novú. Rodinný dom je jednopodlažný, v tvare L, nepodpivničený. Dispozíciu RD tvorí 5 priestranných izieb, pričom na prízemí sa nachádzajú veľká vstupná chodba, 2 izby, kuchyňa, obývacia izba, kúpeľňa, komora a sklad, z ktorého vedie rebrík do podkrovia. Podkrovie je neobytné. Z exteriéru je prístupná ďalšia samostatná obytná izba a dielňa so skladom. Vykurovanie domu je zabezpečené aj na tuhé palivo. V dome je zriadené iba tzv. suché wc, dom nie je napojený na obecnú kanalizáciu.

Nehnuteľnosť disponuje IS: elektrika, plyn, prípojka vody. Kanalizácia v tejto časti obce nie je vybudovaná.

Dopravné možnosti z miesta nehnuteľnosti sú do krajského mesta Trenčín necelých 10 minút autom. Dom je ideálny pre tých, ktorí hľadajú pokoj a tiché prostredie mimo ruchu mesta, no zároveň s dobrou dostupnosťou do blízkeho mesta Trenčína.

Na pozemku sa nachádza aj veľká záhrada, ktorá ponúka možnosti na pestovanie, oddych, prípadne možnú výstavbu novostavby RD. Pozemok je preto vhodný pre 2 rodiny – k rekonštrukcii pôvodnej nehnuteľnosti a k výstavbe novostavby RD v zadnej časti záhrady (návrh v prílohe medzi fotografiami). Z hlavnej prístupovej cesty od ulice Soblahovská je možné na pozemku vybudovať prístupovú cestu pre možnosť budúcej výstavby v zadnej časti záhrady (pri dodržaní podmienok miestneho stavebného úradu Soblahov). Pozemok s nehnuteľnosťou poskytuje prípadnú možnosť viacgeneračného bývania či bývanie spojené s podnikaním.

Lokalita: V obci sa nachádza kompletná občianska vybavenosť, ako obchod, reštaurácia, obecný úrad, kultúrny dom, futbalové ihrisko, pošta, základná škola s materskou školou. V okolí obce sa nachádza krásna príroda vhodná na turistiku a cykloturistiku.

Zaujímavosti o obci: obec je bohatá na vodné zdroje (v blízkosti vyvierajú minerálne pramene kyselky), rastlinstvo a živočíchy. V katastri obce sa nachádzajú prírodné rezervácie Bindárka a Ostrý vrch. Obec má 2 388 obyvateľov.

Ak hľadáte dom v krásnom a pokojnom prostredí v tesnej blízkosti mesta Trenčín, ktorý si môžete upraviť podľa svojich predstáv, neváhajte a kontaktujte nás pre viac informácií alebo pre dohodnutie obhliadky na tel.č.: 0915 753 000, Ing. Zuzana Mangundová, RSc., mail: mangundova@vasereality.sk


V cene je zahrnuté právne poradenstvo, vyhotovenie kúpnych zmlúv, hypotekárne poradenstvo a úhrada správneho poplatku za návrh na vklad do katastra nehnuteľností.

Predávate/kupujete svoju nehnuteľnosť sám, ale netrúfate si na všetky fázy realitného obchodu? Radi Vám pomôžeme tam, kde si nie ste istý.

Na skoré stretnutie s Vami sa teší náš tím - VAŠE REALITY s.r.o. - člen Realitnej Únie Slovenskej republiky

Vlastnosti

Status:
aktívne
Vlastníctvo:
osobné
Plocha pozemku:
1558 m2
Úžitková plocha:
130 m2
Zastavaná plocha:
160 m2
Stav:
pôvodný stav
Počet izieb:
5
Verejné vonkajšie parkovanie:
áno
Počet poschodí od prízemia vyššie:
1
Inžinierske siete:
áno
Voda:
áno
Elektrika:
áno
Plyn:
áno
Voda - na pozemku - vodný zdroj:
áno
Vykurovanie - lokálne:
áno

Hypotekárna kalkulačka

225 000 €
Interné ID: 190032
Ulica: Soblahovská
Obec: Soblahov
Okres: Trenčín
Kraj: Trenčiansky kraj
Druh: Domy
Typ: Predaj
Typ domu: Rodinný dom

Ing. Zuzana Mangundová

  • Slovensky
  • Česky
  • Pусский

Radi Vám poradíme