Používame cookies

Súbory cookie a ďalšie technológie sledovania používame na zlepšenie vášho zážitku z prehliadania našich webových stránok, na to, aby sme vám zobrazovali prispôsobený obsah a cielené reklamy, na analýzu návštevnosti našich webových stránok a na pochopenie toho, odkiaľ naši návštevníci prichádzajú. Viac info

NOVOSTAVBA 4-IZBOVÉHO BUNGALOVU LEN 7 KM OD PIEŠŤAN – SOKOLOVCE

Popis nehnuteľnosti

Zdieľať na Facebooku

189650 - Exkluzívne ponúkame na predaj moderný, nízkoenergetický 4-izbový rodinný dom typu bungalov v pokojnej časti obce Sokolovce, len 7 km od kúpeľného mesta Piešťany. Štvrtá izba slúži ako flexibilný priestor, ktorý môže byť využitý aj ako garáž. Dom je momentálne v štádiu holodom. V cene sú zahrnuté všetky dokončovacie práce, pričom nový majiteľ má možnosť zvoliť si materiály presne podľa svojho vkusu.

Ukážku, ako môže nehnuteľnosť vyzerať po dokončení vrátane zariadenia, nájdete vo videu.

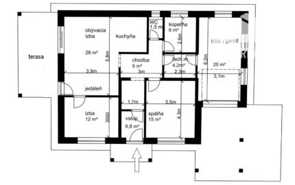
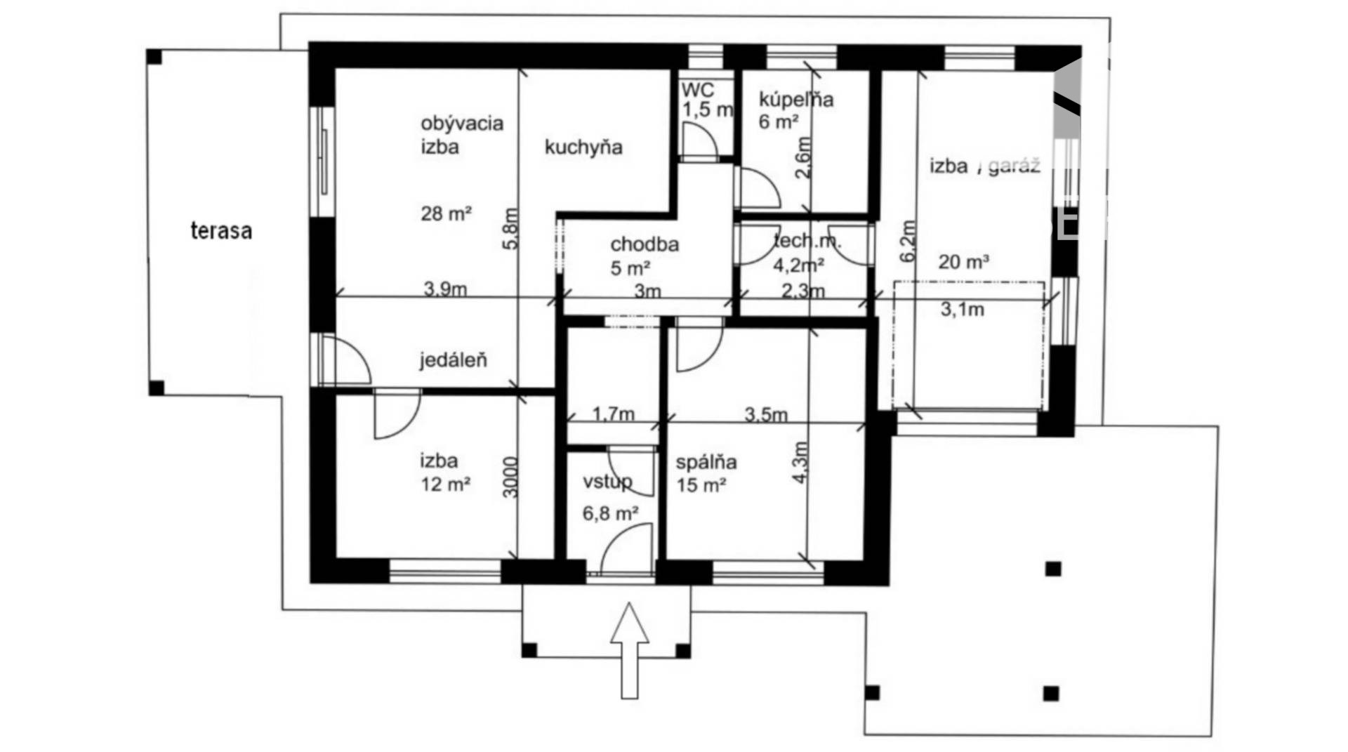
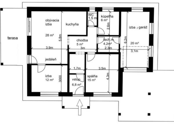
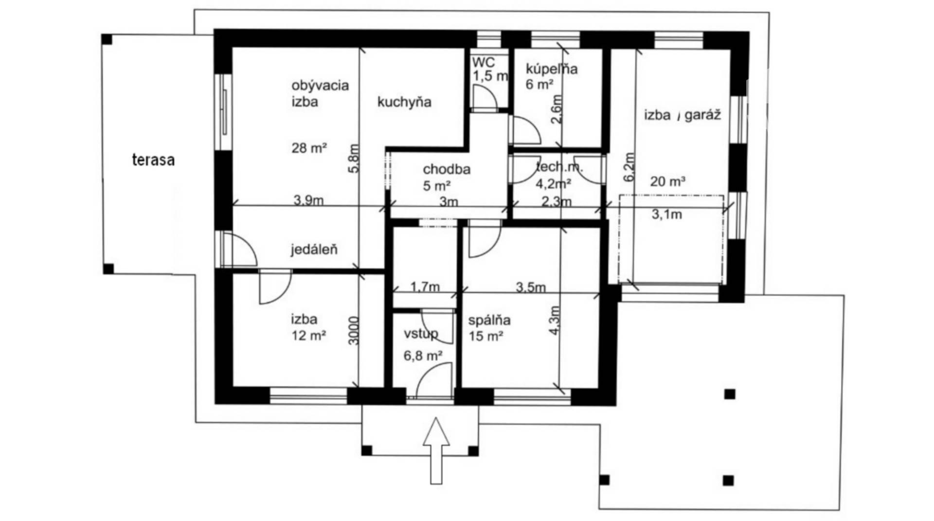
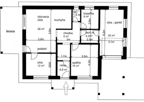
Dom so zastavanou plochou 118 m² je situovaný na rovinatom pozemku s výmerou 325 m². Dispozične je riešený ako jednopodlažný bungalov s celkovou podlahovou plochou 98,5 m². Súčasťou domu je aj zastrešená terasa s výmerou 18,5 m² a kryté parkovacie miesto (20 m²).

Dispozícia:
Zádverie 6,8 m², predsieň 5 m², technická miestnosť 4,2 m², obývacia izba s kuchyňou 28 m², spálňa 12 m², druhá spálňa 15 m², izba (alebo garáž) 20 m², kúpeľňa 6 m², samostatné WC 1,5 m², terasa 18,5 m².

Pôdorys nehnuteľnosti je k dispozícii vo fotogalérii.

Technické vyhotovenie:
Základová doska je zo železobetónu. Obvodové múry z porobetónových tvárnic PORFIX (30 cm), podlahy s liatymi betónovými poterami. Fasáda je zateplená 15 cm grafitovým polystyrénom. Vnútorné steny sú vápenocementové, stropy sadrokartónové s izoláciou a prístupom do sčasti pochôdzneho podkrovia. Plastové okná a vstupné dvere s izolačným trojsklom. Strecha valbová, pokrytá krytinou značky Terran.

Inžinierske siete a vybavenie:
Dom je napojený na elektrickú energiu a vodovod, odpad je riešený žumpou. Kúrenie je podlahové, s možnosťou voľby medzi elektrickým kotlom alebo tepelným čerpadlom. Pripravené sú vývody pre montáž klimatizácie a fotovoltaiky. Vedľa domu sú 3 parkovacie miesta, z toho jedno kryté.

Výhody:

nízke prevádzkové náklady

pokojná lokalita s možnosťami turistiky, cykloturistiky, rybolovu a kúpania (len 5 km od termálneho kúpaliska Koplotovce)

kompletná občianska vybavenosť v obci: škola, škôlka, potraviny, pošta, stavebniny, autobusová doprava

Cena: 249 900 €


Viac informácií Vám radi poskytneme na telefónnom čísle O9O5 436 650 alebo e-mailom na moravcik@vasereality.sk
Pri e-mailovej komunikácii prosíme uviesť aj Váš telefonický kontakt.

Ďalších viac ako 500 nehnuteľností nájdete na www.vasereality.sk

Na osobné stretnutie sa teší tím VAŠE REALITY s.r.o. – člen Realitnej únie SR.

Vlastnosti

Status:
aktívne
Vlastníctvo:
neurčené
Plocha pozemku:
325 m2
Úžitková plocha:
98.5 m2
Zastavaná plocha:
117 m2
Stav:
novostavba
Počet izieb:
4
Energetický certifikát:
B
Terasa:
áno
Verejné vonkajšie parkovanie:
áno
Terasa plocha:
18 m2
Počet terás:
1
Inžinierske siete:
áno
Voda:
áno
Elektrika:
áno
Plyn:
áno
Kanalizácia:
áno
Voda - na pozemku - vodný zdroj:
áno
Kanalizácia - na pozemku - žumpa:
áno
Vykurovanie - lokálne:
áno

Hypotekárna kalkulačka

Video

249 900 €
Interné ID: 189650
Obec: Sokolovce
Okres: Piešťany
Kraj: Trnavský kraj
Druh: Domy
Typ: Predaj
Typ domu: Rodinný dom

Ing. Rudolf Moravčík

  • Slovensky
  • Deutsch
  • English
  • Pусский

Radi Vám poradíme