Používame cookies

Súbory cookie a ďalšie technológie sledovania používame na zlepšenie vášho zážitku z prehliadania našich webových stránok, na to, aby sme vám zobrazovali prispôsobený obsah a cielené reklamy, na analýzu návštevnosti našich webových stránok a na pochopenie toho, odkiaľ naši návštevníci prichádzajú. Viac info

TOP ponuka Zadar: 2i byt s terasou, záhradou a 2 parkovacími miestami!

  • Exkluzívna ponuka

Popis nehnuteľnosti

Zdieľať na Facebooku

NOVOSTAVBA !! Bytový dom s 8 bytovými jednotkami.

Apartmány na prízemí majú záhrady!!

Byt je situovaný na prízemí rozostavaného bytového domu s celkovou úžitkovou plochou 55,58m2

Byt pozostáva zo vstupu, kuchyne s jedálňou a obývacou izbou, kúpeľne, 1 spálne a krytej terasy - loggie.

K bytu prislúcha komora SP2 o rozlohe 5,10m2 v suteréne budovy a 2 vonkajšie parkovacie státia PM3 a PM4 s rozlohou 13,75m2.
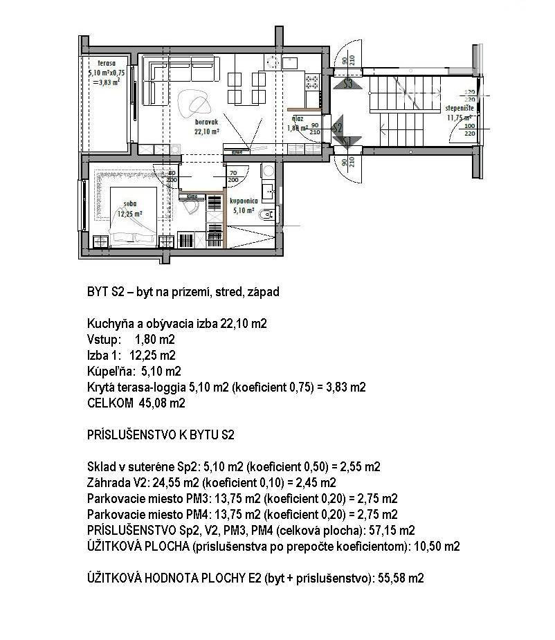
BYT S2 – byt na prízemí, stred, západ

DISPOZĆIA BYTU:
Kuchyňa a obývacia izba: 22,10 m²
Vstup: 1,80 m²
Izba 1: 12,25 m²
Kúpeľňa: 5,10 m²
CELKOM: 41,25 m²

Krytá terasa-loggia: 5,10 m² (koeficient 0,75) = 3,83 m²
BYT S2 - CELKOM: 45,08 m²


PRÍSLUŠENSTVO K BYTU S2
Sklad v suteréne Sp2: 5,10 m² (koeficient 0,50) = 2,55 m²
Záhrada V2: 24,55 m² (koeficient 0,10) = 2,45 m²
Parkovacie miesto PM3: 13,75 m² (koeficient 0,20) = 2,75 m²
Parkovacie miesto PM4: 13,75 m² (koeficient 0,20) = 2,75 m²
PRÍSLUŠENSTVO Sp2, V2, PM3, PM4 (celková plocha): 57,15 m²
ÚŽITKOVÁ PLOCHA (príslušenstva po prepočte koeficientom): 10,50 m²

ÚŽITKOVÁ HODNOTA PLOCHY S2 (byt + príslušenstvo): 55,58 m²

Pri samotnej stavbe sú použité materiály najvyššej kvality. Fasádny polystyrén 10 cm, deliace steny (tehla), klimatizácia každej miestnosti na vykurovanie a chladenie. Podlahové kúrenie v kúpeľni (možno usporiadať v celom byte.) Trojvrstvové sklo, trojvrstvové parkety, bezpečnostné a protipožiarne dvere. Kupujúci má možnosť vybrať si dokončovacie materiály v bytoch. ( parkety, dlažba. )

Kúrenie: tepelné čerpadlá, v každej miestnosti je podlahové kúrenie, komín.

Sťahovanie: začiatok roka 2026.

Blízkosť všetkých zariadení potrebných pre každodenný život (obchody, školy, škôlky atď.)

Cena: 166.740 €

Viac informácií Vám radi poskytneme na telefónnom čísle 0905 436 650, alebo mailovej adrese moravcik@vasereality.sk

Pri kontaktovaní emailom, Vás prosíme uvádzať na Vás i telefonický kontakt.

Ďalších viac ako 500 nehnuteľností nájdete na vasereality.sk

Vlastnosti

Status:
aktívne
Vlastníctvo:
neurčené
Úžitková plocha:
55.58 m2
Stav:
novostavba
Počet izieb:
1
Energetický certifikát:
B
Terasa:
áno
Garáž:
áno
Pivnica:
áno
Verejné vonkajšie parkovanie:
áno
Počet poschodí od prízemia vyššie:
3
Pozícia:
Prízemie
Celková plocha:
55.58 m2
Počet terás:
1
Počet garáží:
2
Pivnica plocha:
5.1 m2
Vykurovanie - lokálne:
áno

Hypotekárna kalkulačka

166 740 €
Interné ID: 936866
Druh: Byty
Typ: Predaj
Typ bytu: 2-izbový byt

Ing. Rudolf Moravčík

  • Slovensky
  • Deutsch
  • English
  • Pусский

Radi Vám poradíme