Používame cookies

Súbory cookie a ďalšie technológie sledovania používame na zlepšenie vášho zážitku z prehliadania našich webových stránok, na to, aby sme vám zobrazovali prispôsobený obsah a cielené reklamy, na analýzu návštevnosti našich webových stránok a na pochopenie toho, odkiaľ naši návštevníci prichádzajú. Viac info

4-IZB BYT "E" 106,45 m2 + TERASA 23 m2, *SPA RESORT* BANKA

  • Exkluzívna ponuka

Popis nehnuteľnosti

Zdieľať na Facebooku

179811 - Realitná kancelária VAŠE REALITY spúšťa predaj nových bytov v novovznikajúcej rezidenčnej štvrti SPA RESORT v tesnej blízkosti termálnych kúpeľov Piešťany. Tento projekt pozostáva zo 6-tich bytových domov s tromi nadzemnými podlažiami. Každý bytový dom bude obsahovať 5 bytových jednotiek. Na prízemí / I.NP (prízemí) sú dva 2-izbové byty s terasou. Na 1. poschodí / II.NP sú dva 2-izbové byty s balkónom. Na 2. poschodí / III.NP je jeden 4-izbový byt s terasou. Byty sú skolaudované.

BYT E 4-izbový s terasou, orientácia miestností: Východ, Západ, Juh, Sever

výmera bytu 106,45 m2 + 23,26 m2 terasa ............... cena: 250 480 € s DPH

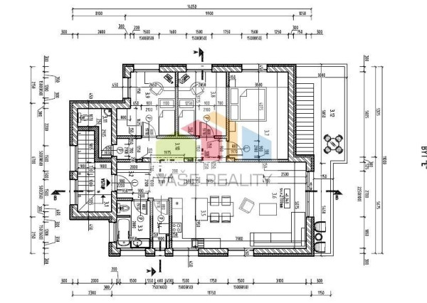
Dispozícia bytu: vstupná chodba 6,90 m2, kúpeľňa 5,46 m2, špajza 2,80 m2, kuchyňa 16,75 m2, obývačka 23,45 m2, izba 18,10 m2, izba 10,76 m2, izba 11,30 m2, chodba 7,40 m2, WC 3,53 m2, terasa 23,26 m2



Vo fotodokumentácii nájdete vizualizáciu bytov a pôdorysy s kótami jednotlivých bytov a poschodí.

STAVBA

Obvodové múry sú z tvárnic PORFIX hr. 30 cm, priečky z tvárnic hr. 15 cm. Obvodové múry sú zateplené izolačnými doskami PSF hr. 15 cm. Strešná izolácia je zateplená izolačnými doskami PSF hr. 15 cm . Strešná krytina je FATRAFOL. Okná sú plastové trojsklo vo farbe biela. Vstupné dvere do bytov sú protipožiarne. Vnútorné omietky sú vápenocementové. Stropy sú sadrokartónové. Byty sa ponúkajú v stave HOLOBYT ! Podľa konštrukčného vyhotovenia a vybavenia bude bytový dom zatriedený do energetickej triedy "B ".

VYKUROVANIE

Kúrenie - každý byt bude disponovať vlastným elektrickým kotlom umiestneným v kúpeľni.

PARKOVANIE

Ku každému bytu je nutné prikúpiť minimálne 1 vonkajšie parkovacie miesto za bytovým domom v cene 8.000 eur s DPH.

DISPOZÍCIE A CENY VŠETKÝCH BYTOV:

PRÍZEMIE / 1.NP

BYT A 2-izbový s terasou, orientácia miestností: Sever, Západ

výmera bytu 60,89 m2 + 16,65 m2 terasa ................. PREDANÉ

zádverie + chodba 13,80 m2, kúpeľňa s WC 6,48 m2, spálňa 12,64 m2, obývačka + kuchyňa 27,97 m2, terasa 16,65 m2

BYT B 2-izbový s terasou, orientácia miestností: Sever, Východ

výmera bytu 58,64 m2 + 16,65 m2 terasa ............. .... cena: 140.736 Euro s DPH

zádverie + chodba 11,55 m2, kúpeľňa s WC 6,48 m2, spálňa 12,64 m2, obývačka + kuchyňa 27,97 m2, terasa 16,65 m2



1.POSCHODIE / 2.NP

BYT C 2-izbový s balkónom, orientácia miestností: Sever, Západ

výmera bytu 60,89 m2 + 6,38 m2 balkón ................. PREDANÉ

zádverie + chodba 13,80 m2, kúpeľňa s WC 6,48 m2, spálňa 12,64 m2, obývačka + kuchyňa 27,97 m2, balkón 6,38 m2

BYT D 2-izbový s balkónom, orientácia miestností: Sever, Východ

výmera bytu 58,64 m2 + 6,26 m2 balkón ................. cena: 140.736 Euro s DPH

zádverie + chodba 11,55 m2, kúpeľňa s WC 6,48 m2, spálňa 12,64 m2, obývačka + kuchyňa 27,97 m2, balkón 6,26 m2



2.POSCHODIE / 3.NP

BYT E 4-izbový s terasou, orientácia miestností: Východ, Západ, Juh, Sever

výmera bytu 106,45 m2 + 23,26 m2 terasa ............... cena: 250.480 Euro s DPH

vstupná chodba 6,90 m2, kúpeľňa 5,46 m2, špajza 2,80 m2, kuchyňa 16,75 m2, obývačka 23,45 m2, izba 18,10 m2, izba 10,76 m2, izba 11,30 m2, chodba 7,40 m2, WC 3,53 m2, terasa 23,26 m2



Pre firmy možný odpočet DPH !!!



Pre bližšie informácie, resp. dohodnutie termínu stretnutia kontaktujte prosím našu spoločnosť na tel.č. 0905 436 650 alebo mailom na moravcik@vasereality.sk

Na skoré stretnutie s Vami sa teší náš tím - VAŠE REALITY s.r.o. - člen Realitnej Únie Slovenskej republiky.
výmera bytu 58,64 m2 + 6,26 m2 balkón ................. PREDANÉ

zádverie + chodba 11,55 m2, kúpeľňa s WC 6,48 m2, spálňa 12,64 m2, obývačka + kuchyňa 27,97 m2, balkón 6,26 m2



2.POSCHODIE / 3.NP

BYT E 4-izbový s terasou, orientácia miestností: Východ, Západ, Juh, Sever

výmera bytu 106,45 m2 + 23,26 m2 terasa ............... cena: 250.480 Euro s DPH

vstupná chodba 6,90 m2, kúpeľňa 5,46 m2, špajza 2,80 m2, kuchyňa 16,75 m2, obývačka 23,45 m2, izba 18,10 m2, izba 10,76 m2, izba 11,30 m2, chodba 7,40 m2, WC 3,53 m2, terasa 23,26 m2





Pre firmy možný odpočet DPH !!!



Pre bližšie informácie, resp. dohodnutie termínu stretnutia kontaktujte prosím našu spoločnosť na tel.č. 0905 436 650 alebo mailom na moravcik@vasereality.sk

Na skoré stretnutie s Vami sa teší náš tím - VAŠE REALITY s.r.o. - člen Realitnej Únie Slovenskej republiky.

Vlastnosti

Status:
aktívne
Vlastníctvo:
korporácia
Úžitková plocha:
106.45 m2
Zastavaná plocha:
106.45 m2
Stav:
novostavba
Počet izieb:
4
Energetický certifikát:
B
Terasa:
áno
Verejné vonkajšie parkovanie:
áno
Rok výstavby:
2022
Rok kolaudácie:
2022
Počet poschodí od prízemia vyššie:
2
Pozícia:
posledné poschodie
Poschodie:
2
Celková plocha:
106.45 m2
Terasa plocha:
23.26 m2
Počet terás:
1
Optická sieť:
áno

Hypotekárna kalkulačka

Video

250 480 €
Interné ID: 179811
Ulica: Moravanská
Obec: Banka
Okres: Piešťany
Kraj: Trnavský kraj
Druh: Byty
Typ: Predaj
Typ bytu: 4-izbový byt

Ing. Rudolf Moravčík

  • Slovensky
  • Deutsch
  • English
  • Pусский

Radi Vám poradíme